
Seguimiento por 3 personas
Anuncio 955224 | 01 octubre 2025
1 950 000 €
La palabra del anunciante
Excepcional propiedad ecuestre y de cría que se beneficia de un entorno idílico, vistas panorámicas y una tranquilidad única.
La finca de 4 ha 20 a 25 ca es ideal para actividades ecuestres privadas.
La propiedad consta de un moderno edificio principal de piedra con establos, dependencias y pista cubierta.
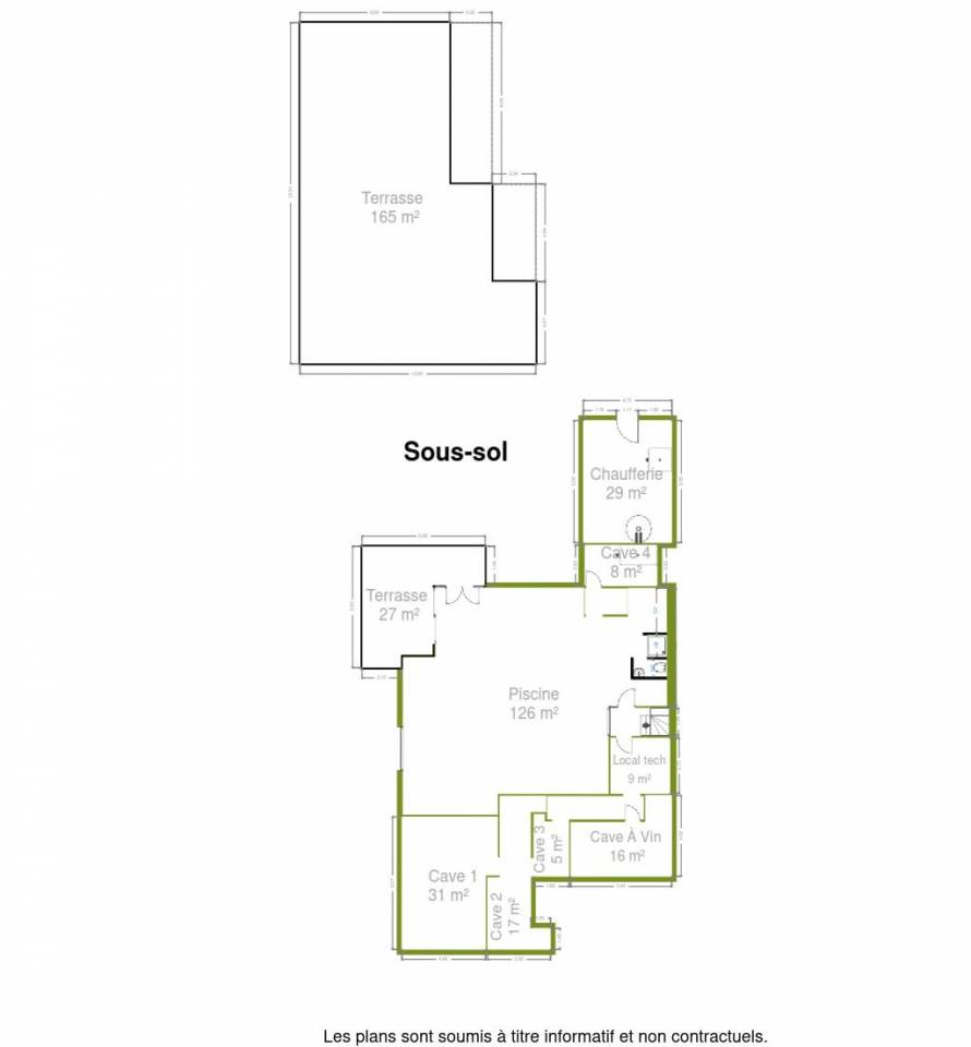
Los edificios son los siguientes
La villa :
Los sótanos :
Piscina cubierta en terraza exterior, vestuarios, duchas, sala técnica, bodega, sala de calderas, varias bodegas, ...
Planta baja:
Majestuoso hall de entrada que conduce a un estudio, un dormitorio con cuarto de baño y vestidor, un salón de 25 m², una sala de estar de 62 m² abierta a una terraza, una cocina hiper equipada, un lavadero que conduce a un amplio garaje con trastero.
1er piso:
Hall de noche que distribuye 3 dormitorios, un cuarto de baño, dos habitaciones de 38 y 39 m² de uso múltiple.
2ª planta :
Buhardilla con tres habitaciones pendientes de transformación.
El edificio principal dispone de varias terrazas y balcones que dan a un magnífico jardín arbolado con piscina exterior.
Características técnicas :
Carpintería de aluminio, pizarra natural, revestimiento de piedra, depósito de agua de lluvia de 10 K L, instalación fotovoltaica de 12 Kwc, caldera de gasoil Viessmann, calefacción por suelo radiante, suelos de piedra francesa / parquet, aspiradores murales, bombas de calor para las piscinas, ...
Instalaciones ecuestres :
Constan de una hilera de 7 boxes con bebederos automáticos, un guadarnés, etc.
El pajar con montacargas está situado encima de los boxes.
Detrás de la hilera de boxes hay una pista cubierta de 20 x 20.
El terreno :
La propiedad se extiende sobre 4 ha 20 a 25 ca.
Queda la posibilidad de negociar una parcela de 30 a 90 ca.
Ubicación:
Situado en una calle tranquila con una vista general de la región
± 13 km de Libramont - ± 28 km de Bastogne - ± 60 km de Arlon - ± 70 km de Namur - ± 80 km de Lieja ± 90 km de Luxemburgo - ...
Condiciones :
Información completa y visita tras firma de NDA y aprobación del propietario.
Anunciante
COFIM srl
Profesional
Jean Yves C.
6870 Saint Hubert - Bélgica (Valonia)
Localisación